MRT 板


LINE

看板 MRT  RSS
连结:https://reurl.cc/DbOdnj 阅览期限:114.12.16(明天)止,含蓝线高架段「全范围」土建、水环图说 工程范围:尾轨-B01站-B02站-B03站,全长2.49公里,预算99.3亿元 https://i.meee.com.tw/Kc9AoJW.jpg
(来源: https://www.taichung.gov.tw/8868/8872/9962/3163648 ) 形式:高架桥梁 工期:5年7个月 备注:B03站东端经B08站至出土段桥台(不含)属BC12标 B01站:临港-台湾大道路口北侧 穿堂层海侧模拟图 https://i.meee.com.tw/TQJPsMw.jpg
出入口A:临港路西侧,设电扶梯*2+电梯,属简易型、仅有动线空间 出入口B:临港路东侧,设电扶梯*2+楼梯+电梯,含汽机车停车场及「备用空间」 楼层:2F月台层(岛式、8.7m宽)、3F穿堂层 B02站:梧栖国小南侧 出入口A:位於站体(台湾大道九段)北侧、梧栖国小用地内,设电扶梯*2+楼梯+电梯及自行 车、机车停车位 联开基地:位於台湾大道-文化路口东南角,以空桥(会先施作)联接非付费区 楼层:2F穿堂层(单侧闸口)、3F月台层(侧式、各7.35m宽) B03站:童综合医院附近 出入口A:台湾大道八段南侧,设电扶梯*2+楼梯+电梯,含西侧土开共构建筑空间及自行车 、机车停车位,穿堂层设PAO及厕所 出入口B:台湾大道八段北侧,设电扶梯*1+楼梯+电梯,含土开共构建筑空间,穿堂层仅简 易PAO、无厕所 楼层:2F穿堂-月台同层(侧式、7.35m宽)、3F穿越层(空桥1座-电扶梯*1+楼梯+电梯衔接) 机房:部分设置於两座侧式月台西端空间,同基设成果、与绿线部分车站相似 --



※ 发信站: 批踢踢实业坊(ptt.cc), 来自: 223.136.78.208 (台湾)
※ 文章网址: https://webptt.com/cn.aspx?n=bbs/MRT/M.1765772229.A.77E.html
1F:推 GrafRaphael: https://i.mopix.cc/xzaDdA.jpg 12/15 12:23
2F:→ GrafRaphael: 不知道BC12及BC21区段标属於哪些车站的路段范围? 12/15 12:24
3F:推 YoCheng: 希望橘线能照表进行 12/15 12:25
4F:→ YoCheng: BC12是B03到机厂的样子 12/15 12:26
BC12不包含出土段桥台、路基、引道及隧道,因此列车要能进出机厂以达成部分通车的条 件,BC21应该会是关键
5F:→ yankbarca: 蓝线总共拆几标啊? 12/15 12:59
6F:推 YoCheng: https://i.imgur.com/2msvtlY.jpeg 12/15 13:18
7F:推 rayisgreat: 高架应该能盖比较快吧,记得海线会早几年通车 12/15 13:22
8F:→ el1901: 水电环控细设图内有B04车站图,可以看出未来与台铁沙鹿站 12/15 13:34
9F:→ el1901: 转乘动线 12/15 13:34
10F:推 Howard61313: 不知道什麽时候会看到蓝线BD03的 12/15 13:40
11F:推 eugene0315: 海线那8站先通车也没意义啊... 12/15 14:26
功能有限,但总得有个交待,至少123年能通部分
12F:→ GrafRaphael: Y大的图是在哪里找到的? 12/15 14:33
13F:推 a20731: 九张犁站有机会脱离全台炉主了吗? 12/15 14:37
14F:推 YoCheng: G大,在采购网公开展览里面下载项目中的「机关需求书」 12/15 14:44
15F:→ YoCheng: ,但也只有这段有图而已 12/15 14:44
16F:→ el1901: 确定B05没有做往三民路橘线道岔,可以死心了。 12/15 15:14
17F:推 chao811023: 橘线要招标综规是可研有好消息了吗 12/15 15:27
橘线今年7月进入行政院审查阶段,算是最後关卡,但也有可能像三莺线延伸八德一样卡比 较久一点 ※ 编辑: ELYC1x (223.136.78.208 台湾), 12/15/2025 22:20:50
18F:推 YoCheng: https://i.imgur.com/0X7rzGQ.jpeg 橘线就卡在一个很奇 12/15 23:04
19F:→ YoCheng: 怪的地方啊 12/15 23:04
20F:推 Glock: 台湾其他地方盖捷运都要促参评估吗?还是只有台中盖捷运才 12/15 23:54
21F:→ Glock: 要? 12/15 23:54
22F:→ willko: 很奇怪台中送的後面每一个都要促参平台 之前也没看过 然 12/16 01:11
23F:→ willko: 後橘线这个更虾什麽行政院秘书长要求附 最後平台又回覆不 12/16 01:11
24F:→ willko: 用 那卡半年卡什麽意思 12/16 01:11
25F:推 a20731: 红线说12月要开说明会 12/16 02:35
26F:→ a20731: 现在月中了连召开公听会的公告都没有 12/16 02:35
27F:→ a20731: 发公告都不用提前2个礼拜? 12/16 02:35
28F:→ a20731: 难道要压在最後一天? 12/16 02:35
29F:推 Tcuro: 终於有进度了 12/16 06:33
30F:推 GrafRaphael: 基设案时的规格是70公尺长四节车厢,细设案是改成70 12/16 14:07
31F:→ GrafRaphael: 公尺长三节车厢对吧? 12/16 14:07
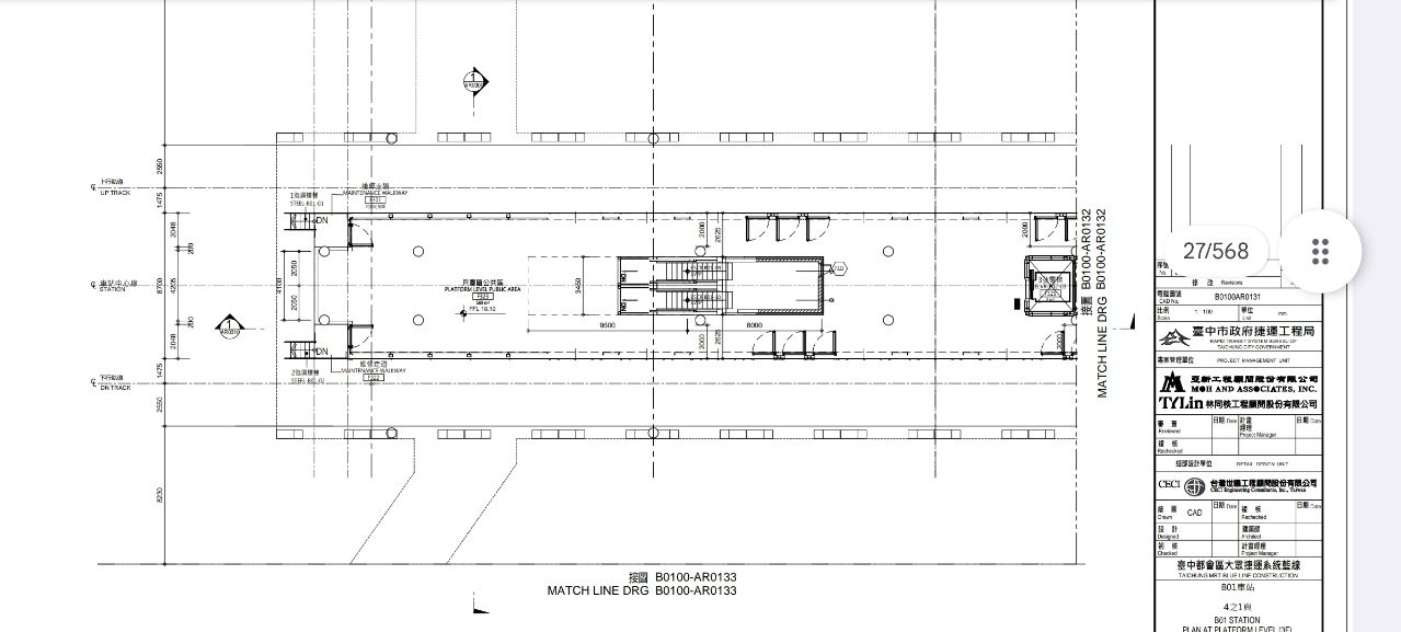
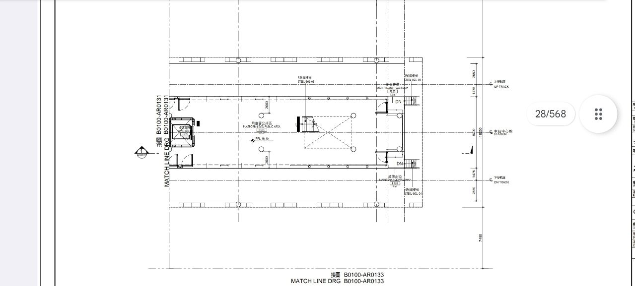
32F:→ GrafRaphael: 看了一下细设月台设计图,有些是九个门 12/16 14:08
33F:→ GrafRaphael: https://i.mopix.cc/UwGURt.jpg 12/16 14:08
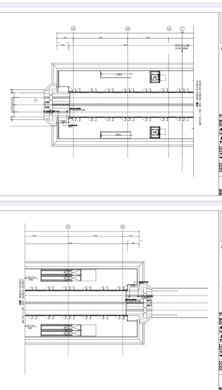
34F:→ GrafRaphael: https://i.mopix.cc/FZqMWi.jpg 12/16 14:09
35F:→ GrafRaphael: 但也看到疑似是12个门的 12/16 14:09
36F:→ GrafRaphael: https://i.mopix.cc/ZTceUJ.jpg 12/16 14:10
37F:推 YellowWolf: 高架麻烦快一点 12/16 15:37







like.gif 您可能会有兴趣的文章
icon.png[问题/行为] 猫晚上进房间会不会有憋尿问题
icon.pngRe: [闲聊] 选了错误的女孩成为魔法少女 XDDDDDDDDDD
icon.png[正妹] 瑞典 一张
icon.png[心得] EMS高领长版毛衣.墨小楼MC1002
icon.png[分享] 丹龙隔热纸GE55+33+22
icon.png[问题] 清洗洗衣机
icon.png[寻物] 窗台下的空间
icon.png[闲聊] 双极の女神1 木魔爵
icon.png[售车] 新竹 1997 march 1297cc 白色 四门
icon.png[讨论] 能从照片感受到摄影者心情吗
icon.png[狂贺] 贺贺贺贺 贺!岛村卯月!总选举NO.1
icon.png[难过] 羡慕白皮肤的女生
icon.png阅读文章
icon.png[黑特]
icon.png[问题] SBK S1安装於安全帽位置
icon.png[分享] 旧woo100绝版开箱!!
icon.pngRe: [无言] 关於小包卫生纸
icon.png[开箱] E5-2683V3 RX480Strix 快睿C1 简单测试
icon.png[心得] 苍の海贼龙 地狱 执行者16PT
icon.png[售车] 1999年Virage iO 1.8EXi
icon.png[心得] 挑战33 LV10 狮子座pt solo
icon.png[闲聊] 手把手教你不被桶之新手主购教学
icon.png[分享] Civic Type R 量产版官方照无预警流出
icon.png[售车] Golf 4 2.0 银色 自排
icon.png[出售] Graco提篮汽座(有底座)2000元诚可议
icon.png[问题] 请问补牙材质掉了还能再补吗?(台中半年内
icon.png[问题] 44th 单曲 生写竟然都给重复的啊啊!
icon.png[心得] 华南红卡/icash 核卡
icon.png[问题] 拔牙矫正这样正常吗
icon.png[赠送] 老莫高业 初业 102年版
icon.png[情报] 三大行动支付 本季掀战火
icon.png[宝宝] 博客来Amos水蜡笔5/1特价五折
icon.pngRe: [心得] 新鲜人一些面试分享
icon.png[心得] 苍の海贼龙 地狱 麒麟25PT
icon.pngRe: [闲聊] (君の名は。雷慎入) 君名二创漫画翻译
icon.pngRe: [闲聊] OGN中场影片:失踪人口局 (英文字幕)
icon.png[问题] 台湾大哥大4G讯号差
icon.png[出售] [全国]全新千寻侘草LED灯, 水草

请输入看板名称,例如:BabyMother站内搜寻

TOP